Ausstattung
- WLAN
- Waschmaschine
- Küche
- Geschirrspüler
- Terrasse
- Kaffeemaschine
- Backofen
- Toaster
- verdunkelnde Vorhänge
- Internet
- Doppelbett
- Garderobe
- Allergikerfreundlich
- Heißes Wasser
- Etagenbett
Beschreibung
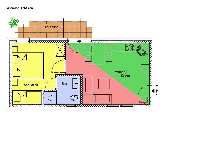
Das 2-Raum-Apartment im Erdgeschoss verfügt über ein separates Schlafzimmer mit Doppelbett und Etagenbett, Wohnraum mit Küchenzeile &Essecke (TV) sowie separates Badezimmer mit Dusche/WC. Sie haben Zugang auf eine Terrasse. NICHTRAUCHERWOHNUNG! WLAN im Haus.Das Haus befindet sich in idealer Stadtlage nur wenige Gehminuten von der Einkaufsstraße mit Geschäften, Restaurants & Einkaufsmöglichkeiten sowie vom beliebten Westbadestrand entfernt.